Przejdź do treści
3 Pietro

Sprzedane — ta oferta jest już nieaktualna i ma charakter archiwalny.

Sprzedaż Mieszkanie Sprzedana Nr: MLY-MS-7680

Dwupokojowe mieszkanie do własnej aranżacji!

Sucha, Pogoń, Sosnowiec

180 000 zł
3 333 zł / m²
54 m²
Powierzchnia
2 pokoje
Pokoje
P. 2p / 2
Piętro

Opis nieruchomości

MIESZKANIE
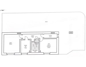
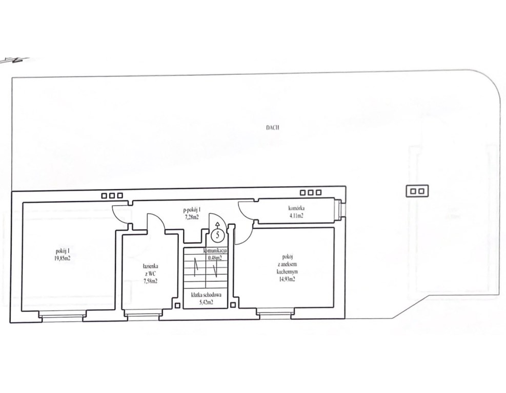
Dwupokojowe mieszkanie położne na drugim piętrze w dwupiętrowym budynku. Mieszkanie jest do generalnego remontu – własna aranżacja. Dach budynku został wymieniony. Do mieszkania przynależy piwnica oraz ogródek. Budynek jest ogrodzony.

LOKALIZACJA
Mieszkanie zlokalizowane jest w Sosnowcu przy ul. Suchej w dzielnicy Pogoń.  W pobliżu przystanek autobusowy oraz tramwajowy. Bardzo dobry dojazd do centrum, osiedle dobrze skomunikowane z całym miastem. W pobliżu liczne punkty sportowe, rekreacyjne, szkoły, przedszkola oraz przychodnie lekarskie.​ Blisko wyjazdu w stronę Katowic, Będzina oraz Dąbrowy Górniczej. 
 
UKŁAD POMIESZCZEŃ
Łączna powierzchnia: mieszkanie 53,75 m² + piwnica 1,87m2 + ogródek 
• Łazienka z WC 
• Korytarz 
• Kuchnia
• Pokój 1 
• Pokój 2

DODATKOWE INFORMACJE
• Mieszkanie do własnej aranżacji
• Okna PCV
• Ogródek 
• Piwnica 

CENA MIESZKANIA – 180.000 PLN

Cena nie uwzględnia kosztów prowizji oraz opłat notarialnych.
 
POMAGAMY W UZYSKANIU FINANSOWANIA NA ZAKUP NIERUCHOMOŚCI

Alicja Pietras
Doradca ds. nieruchomości

Szczegóły oferty

Typ nieruchomości Mieszkanie
Typ transakcji Sprzedaż
Powierzchnia 54 m²
Pow. użytkowa 54 m²
Liczba pokoi 2
Rozkład Jednostronne rozkładowe
Piętro 2p / 2
Kondygnacje 2
Rok budowy 1980
Stan Do remontu
Stan lokalu Do remontu
Rynek Rynek wtórny
Rodzaj budynku Kamienica
Rodzaj mieszkania Jednopoziomowe
Ogrzewanie Brak
Okna PCV
Instalacje Nie wymienione
Balkon Brak
Cena 180 000 zł
Cena za m² 3 333 zł
Lokalizacja Pogoń, Sosnowiec
Dzielnica Pogoń
Ulica Sucha
Nr oferty MLY-MS-7680

Cechy i udogodnienia

Piwnica

Lokalizacja

Opiekun oferty

Alicja Pietras
Alicja Pietras
Doradca ds. nieruchomości

Oferta ma charakter informacyjny i nie stanowi oferty handlowej w rozumieniu Art. 66 §1 Kodeksu Cywilnego. Pośrednik odpowiedzialny za treść oferty — licencja pośrednika w obrocie nieruchomościami.

180 000 zł
Zadzwoń