Przejdź do treści
3 Pietro

Sprzedane — ta oferta jest już nieaktualna i ma charakter archiwalny.

Sprzedaż Mieszkanie Sprzedana Nr: MLY-MS-7545

3-pokojowe z ogródkiem do własnej aranżacji!

Niwecka, Dańdówka, Sosnowiec

310 000 zł
5 439 zł / m²
57 m²
Powierzchnia
3 pokoje
Pokoje
P. wysoki parter / 3
Piętro
1 000 zł / mies.
Czynsz

Opis nieruchomości

MIESZKANIE
Przestronne, bardzo słoneczne trzypokojowe mieszkanie, położone na wysokim parterze w niskim bloku.  Mieszkanie do własnej aranżacji. W mieszkaniu są bardzo wysokie sufity co optycznie powiększa przestrzeń. Czysta i zadbana klatka schodowa, budynek po termomodernizacji. Do mieszkania przynależy bardzo duży kawałek ogrodu. 

LOKALIZACJA
Mieszkanie zlokalizowane jest w Sosnowcu przy ulicy Niweckiej w dzielnicy Dańdówka. W pobliżu znajdują się przystanek autobusowy oraz tramwajowy. Świetna komunikacja z całą aglomeracją. Niedaleko znajdziemy również liczne punkty sportowe, rekreacyjne, przedszkola, tereny zielone oraz przychodnie lekarskie.​ 

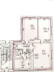
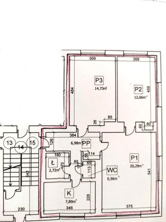
UKŁAD POMIESZCZEŃ

Łączna powierzchnia: 66  mieszkanie + piwnica (9,5m2) + duży ogród ok. 502
• Przedpokój
• Sypialnia
• Łazienka 
• Kuchnia
• Salon
• Pokój
• WC

DODATKOWE INFORMACJE
• Ciepła woda z piecyka gazowego
• Mieszkanie do własnej aranżacji 
• Budynek po termomodernizacji 
• Wymienione piony WOD – KAN
• Ogrzewanie bez podzielników
• Ogrzewanie z sieci miejskiej 
• Zadbany teren wokół bloku
• Duży ogródek za blokiem 
• Mieszkanie do remontu
• Pełna własność z KW
• Duża piwnica 
• Okna PCV

CENA MIESZKANIA – 310.000 PLN
 
Możliwość dokupienia garażu szeregowego murowanego zlokalizowanego 350 m od mieszkania na ul. Mariana Maliny w cenie 60.000 zł.

Zapraszam do kontaktu! 

Cena nie uwzględnia prowizji dla Biura Nieruchomości oraz kosztów notarialnych. 
 
POMAGAMY W UZYSKANIU FINANSOWANIA NA ZAKUP NIERUCHOMOŚCI

Alicja Pietras 
Doradca ds. nieruchomości

Szczegóły oferty

Typ nieruchomości Mieszkanie
Typ transakcji Sprzedaż
Powierzchnia 57 m²
Pow. użytkowa 57 m²
Piwnica 9.5000 m²
Liczba pokoi 3
Rozkład Dwustronne rozkładowe
Piętro wysoki parter / 3
Kondygnacje 3
Stan Do remontu
Stan lokalu Do remontu
Rynek Rynek wtórny
Forma własności Pełna własność
Rodzaj budynku Blok
Rodzaj mieszkania Jednopoziomowe
Technologia Nowa cegła
Ogrzewanie Miejskie
Okna PCV
Instalacje Częściowo wymienione
Balkon Brak
Garaż / parking Garaż
Winda Nie
Cena 310 000 zł
Cena za m² 5 439 zł
Czynsz / opłata 1 000 zł / mies.
Lokalizacja Dańdówka, Sosnowiec
Dzielnica Dańdówka
Ulica Niwecka
Nr oferty MLY-MS-7545

Cechy i udogodnienia

Garaż
Piwnica

Lokalizacja

Opiekun oferty

Alicja Pietras
Alicja Pietras
Doradca ds. nieruchomości

Oferta ma charakter informacyjny i nie stanowi oferty handlowej w rozumieniu Art. 66 §1 Kodeksu Cywilnego. Pośrednik odpowiedzialny za treść oferty — licencja pośrednika w obrocie nieruchomościami.

310 000 zł
+ czynsz 1 000 zł
Zadzwoń