
4 pokojowe z balkonem! Od zaraz!
Sosnowiec
Sprzedane — ta oferta jest już nieaktualna i ma charakter archiwalny.
MIESZKANIE
Bardzo funkcjonalne i przestronne mieszkanie położone na pierwszym piętrze w wysokim bloku z windą. Czysta, zadbana klatka schodowa, zielona okolica. Mieszkanie idealne dla rodzin, gotowe do zamieszkania, bez konieczności wykonywania większych prac. Mieszkanie wymaga ewentualnie odświeżenia. W pełni umeblowane oraz wyposażone w szafy w zabudowie. Wymieniona instalacje elektryczna oraz piony wodno-kan. W mieszkania zostały zamontowane solidne drzwi antywłamaniowe marki Dierre. Ogrzewanie z sieci miejskiej bez podzielników ciepła. Do mieszkania przynależy balkon, piwnica oraz komórka lokatorska.
LOKALIZACJA
Mieszkanie zlokalizowane jest w Sosnowcu, ul. 11 Listopada, Zagórze. W pobliżu przystanek autobusowy, tramwajowy. Świetna komunikacja z całą aglomeracją. W pobliżu liczne punkty sportowe (50 m), rekreacyjne, szkoły (350 m), przedszkola (350 m), tereny zielone (Park Zagórski i Plac Papieski 100 m) oraz przychodnie lekarskie (50 m).
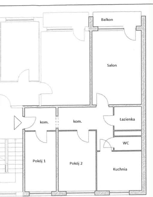
UKŁAD POMIESZCZEŃ
Łączna powierzchnia: 63 m²
• Salon z wyjściem na balkon
• Oddzielna kuchnia
• Pokój dziecięcy
• Przedpokój
• Sypialnia
• Łazienka
• WC
DODATKOWE INFORMACJE
• Ogrzewanie z sieci miejskiej bez podzielników
• Czynsz w granicach ok. 1400 PLN/4 osoby
• Na podłodze płytki oraz deska barlinecka
• Komórka lokatorska 3,19 m2
• Odrębna własność z KW
• Piwnica 3,11 m2
• Okna PCV
• Balkon
CENA MIESZKANIA – 359 000 PLN
Cena nie uwzględnia kosztów prowizji oraz opłat notarialnych.
Pomagamy w uzyskaniu finansowania na zakup nieruchomości.
Olivia Tlałka
Doradca ds. nieruchomości
Oferta ma charakter informacyjny i nie stanowi oferty handlowej w rozumieniu Art. 66 §1 Kodeksu Cywilnego. Pośrednik odpowiedzialny za treść oferty — licencja pośrednika w obrocie nieruchomościami.

Sosnowiec

Ostrowy Górnicze

Milowice

Milowice