Przejdź do treści
3 Pietro

Sprzedane — ta oferta jest już nieaktualna i ma charakter archiwalny.

Sprzedaż Mieszkanie Sprzedana Nr: MLY-MS-12177

Mieszkanie na sprzedaż – 57 m², 3 pokoje

310 000 zł
5 439 zł / m²
57 m²
Powierzchnia
3 pokoje
Pokoje
P. parter
Piętro
1 000 zł / mies.
Czynsz

Opis nieruchomości

MIESZKANIE
Przestronne, bardzo słoneczne trzypokojowe mieszkanie, położone na wysokim parterze w niskim bloku.  Mieszkanie do własnej aranżacji. W mieszkaniu są bardzo wysokie sufity co optycznie powiększa przestrzeń. Czysta i zadbana klatka schodowa, budynek po termomodernizacji. Do mieszkania przynależy bardzo duży kawałek ogrodu. 

LOKALIZACJA
Mieszkanie zlokalizowane jest w Sosnowcu przy ulicy Niweckiej w dzielnicy Dańdówka. W pobliżu znajdują się przystanek autobusowy oraz tramwajowy. Świetna komunikacja z całą aglomeracją. Niedaleko znajdziemy również liczne punkty sportowe, rekreacyjne, przedszkola, tereny zielone oraz przychodnie lekarskie.​ 

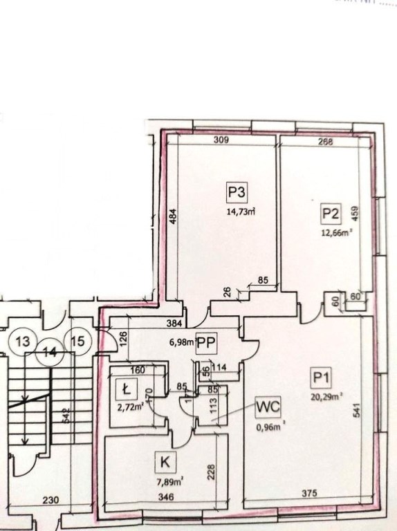
UKŁAD POMIESZCZEŃ

Łączna powierzchnia: 66  mieszkanie + piwnica (9,5m2) + duży ogród ok. 502
• Przedpokój
• Sypialnia
• Łazienka 
• Kuchnia
• Salon
• Pokój
• WC

DODATKOWE INFORMACJE
• Ciepła woda z piecyka gazowego
• Mieszkanie do własnej aranżacji 
• Budynek po termomodernizacji 
• Wymienione piony WOD – KAN
• Ogrzewanie bez podzielników
• Ogrzewanie z sieci miejskiej 
• Zadbany teren wokół bloku
• Duży ogródek za blokiem 
• Mieszkanie do remontu
• Pełna własność z KW
• Duża piwnica 
• Okna PCV

CENA MIESZKANIA – 310.000 PLN
 
Możliwość dokupienia garażu szeregowego murowanego zlokalizowanego 350 m od mieszkania na ul. Mariana Maliny w cenie 60.000 zł.

Zapraszam do kontaktu! 

Cena nie uwzględnia prowizji dla Biura Nieruchomości oraz kosztów notarialnych. 
 
POMAGAMY W UZYSKANIU FINANSOWANIA NA ZAKUP NIERUCHOMOŚCI

Alicja Pietras 
Doradca ds. nieruchomości

Szczegóły oferty

Typ nieruchomości Mieszkanie
Typ transakcji Sprzedaż
Powierzchnia 57 m²
Pow. użytkowa 57 m²
Liczba pokoi 3
Piętro parter
Rynek Rynek wtórny
Materiał budynku Cegła
Ogrzewanie Miejskie
Okna PCV
Garaż / parking Tak
Cena 310 000 zł
Cena za m² 5 439 zł
Czynsz / opłata 1 000 zł / mies.
Nr oferty MLY-MS-12177

Opiekun oferty

Alicja Pietras
Alicja Pietras
Doradca ds. nieruchomości

Oferta ma charakter informacyjny i nie stanowi oferty handlowej w rozumieniu Art. 66 §1 Kodeksu Cywilnego. Pośrednik odpowiedzialny za treść oferty — licencja pośrednika w obrocie nieruchomościami.

310 000 zł
+ czynsz 1 000 zł
Zadzwoń