
4 pokojowe z balkonem! Od zaraz!
Sosnowiec
Sprzedane — ta oferta jest już nieaktualna i ma charakter archiwalny.
MIESZKANIE
Wyjątkowe i zadbane mieszkanie dwupokojowe położone na trzecim piętrze w niskim bloku po termomodernizacji. Klatka schodowa szeroka, czysta i utrzymana w bardzo dobrym stanie. Wnętrze mieszkania jest utrzymane wzorowo – duża, funkcjonalna kuchnia, miedziana instalacja elektryczna oraz wymienione piony wodne. Lokal sprzedawany jest z umeblowaniem, dzięki czemu można od razu wchodzić i mieszkać, bez konieczności ponoszenia dodatkowych nakładów finansowych.
Ogrzewanie pochodzi z sieci miejskiej, a ciepła woda z piecyka gazowego – mieszkanie jest ciepłe i przytulne. Dodatkowo do dyspozycji jest balkon oraz piwnica. Ogromnym atutem jest parking za szlabanem, przeznaczony wyłącznie dla mieszkańców bloku. Oferta idealna dla osób szukających gotowego do zamieszkania, zadbanego i klimatycznego miejsca.
Dwa ostatnie zdjęcia przedstawiają wizualizację mieszkania.
LOKALIZACJA
Mieszkanie zlokalizowane jest w Sosnowcu, przy ul. Królowej Jadwigi w dzielnicy Dębowa Góra. W pobliżu przystanek autobusowy (600 m) oraz tramwajowy (450 m). Świetna komunikacja z całą aglomeracją. W pobliżu również sklepy (np. LIDL- 650 m), liczne punkty sportowe, rekreacyjne (Ninja Park Atrakcji- 3 min pieszo), szkoły, przedszkola (900 m), tereny zielone (Park Harcerski- 550 m) oraz przychodnie lekarskie.
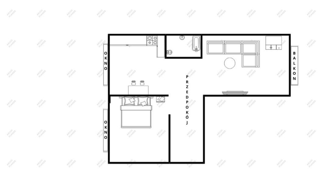
UKŁAD POMIESZCZEŃ
Łączna powierzchnia: 45 m2
• Salon z wyjściem na balkon
• Oddzielna kuchnia
• Łazienka z WC
• Przedpokój
• Sypialnia
DODATKOWE INFORMACJE
• Czynsz ze wszystkimi zaliczkami ok. 1000 zł/ 2 os.
• Prywatny parking wyłącznie dla mieszkańców
• Mieszkanie w pełni umeblowane
• Ogrzewanie z sieci miejskiej
• Pełna własność z KW
• Okna PCV
• Piwnica
• Balkon
CENA MIESZKANIA – 272 000 PLN
Cena nie uwzględnia kosztów prowizji oraz opłat notarialnych.
POMAGAMY W UZYSKANIU FINANSOWANIA NA ZAKUP NIERUCHOMOŚCI
Olivia Tlałka
Doradca ds. nieruchomości
Oferta ma charakter informacyjny i nie stanowi oferty handlowej w rozumieniu Art. 66 §1 Kodeksu Cywilnego. Pośrednik odpowiedzialny za treść oferty — licencja pośrednika w obrocie nieruchomościami.

Sosnowiec

Ostrowy Górnicze

Milowice

Milowice